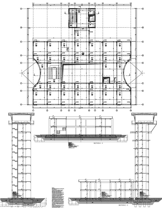
Anbar Ramadi Internatıonal Airport Air Traffic Control Tower

Proje: Anbar Ramadi Irak International Airport

Firma: Anbar Valiliği

Statik Tasarım: Erduman Mühendislik

Toplam Alan: 85.650

Yer: Ramadi, Irak