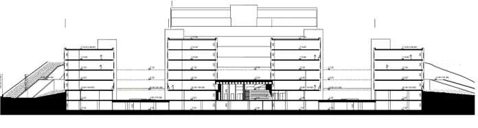
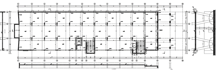
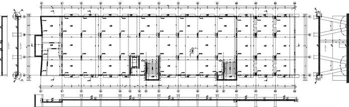
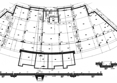
Özyeğin Üniversitesi Yurt Binaları Ve Misafirhane

Proje: Özyeğin Üniversitesi Yurt Binaları Ve Misafirhane

Firma: Fiba Gayrimenkul

Mimari Tasarım: Hatırlı Mimarlık

Statik Tasarım: Erduman Mühendislik

Toplam Alan: 13000 

Tarih: Nisan 2007

Yer: İstanbul