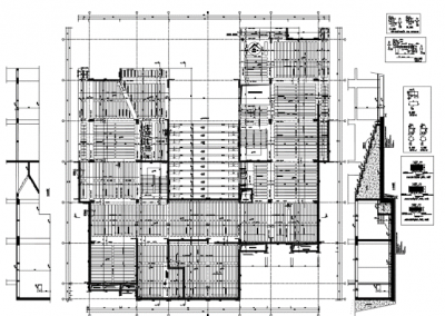
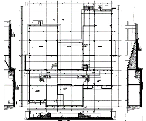
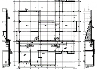
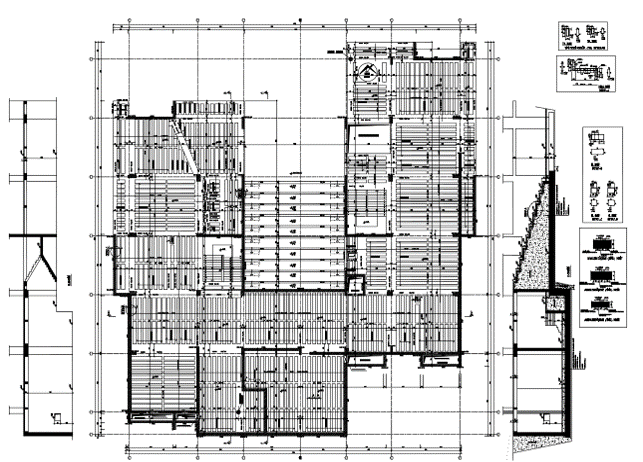
Türk Amerikan Derneği Anaokulu

Proje: Türk Amerikan Derneği Anaokulu

Firma: Hatırlı Mimarlık

Mimari Tasarım: Hatırlı Mimarlık

Statik Tasarım: Erduman Mühendislik

Toplam Alan: 3249